Villa singola in vendita

Marino, villa via spinabella
€ 690.000
7 locali 7 locali
500 Mq 500 Mq
6 bagni 6 bagni

Villa singola in vendita

Marino, villa via spinabella

Descrizione annuncio

TRATTATIVA RISERVATA!

Le foto non sono dell'immobile che stiamo vendendo che stiamo vendendo per una questione di privacy.

Nel cuore della zona più esclusiva di Marino, questa villa di recente costruzione ti offre un'esperienza unica grazie al suo panorama spettacolare, che spazia dai Monti Tiburtini fino a tutto il litorale laziale. Un ambiente immerso nella natura, ma a pochi passi dal centro: 1,5 km da Marino e a pochi passi dal lago Albano di Castel Gandolfo.

Con 7000 mq di terreno, la proprietà si distingue per la sua posizione privilegiata e per la grande potenzialità di personalizzazione. Sebbene l'esterno sia completamente ristrutturato, gli interni sono ancora da completare, offrendo l'opportunità di plasmare gli spazi secondo le proprie esigenze.

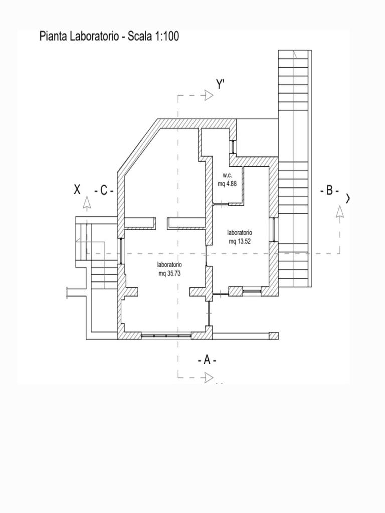
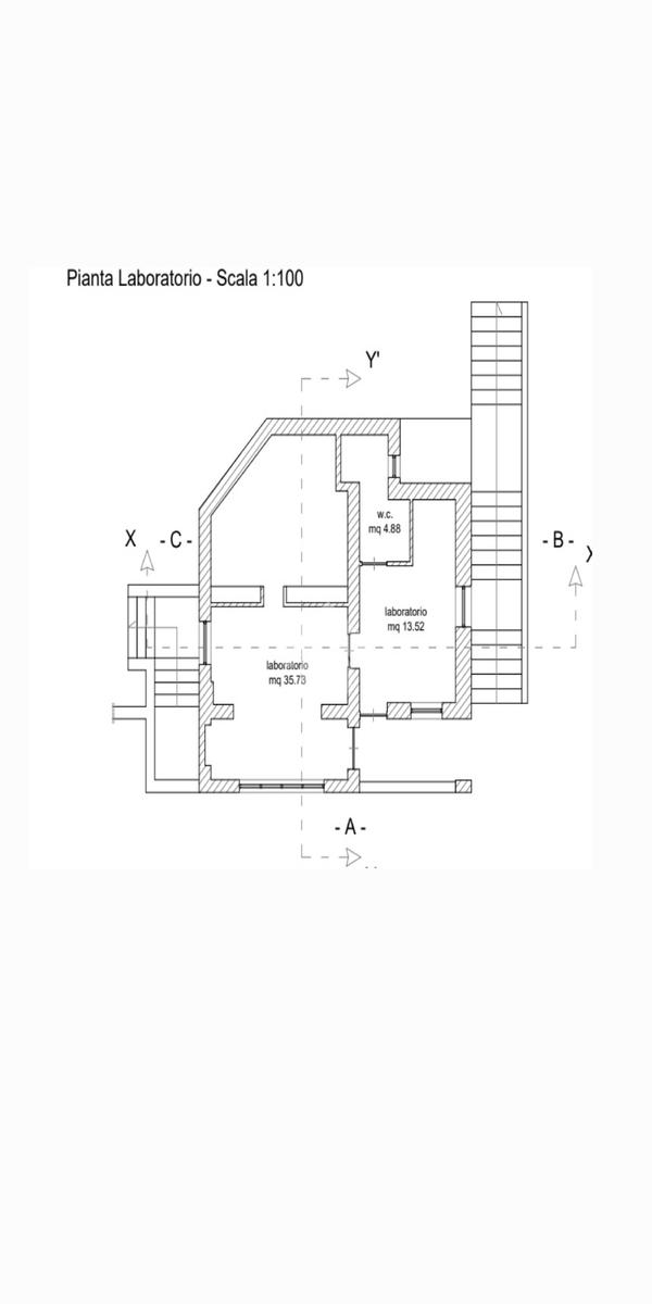
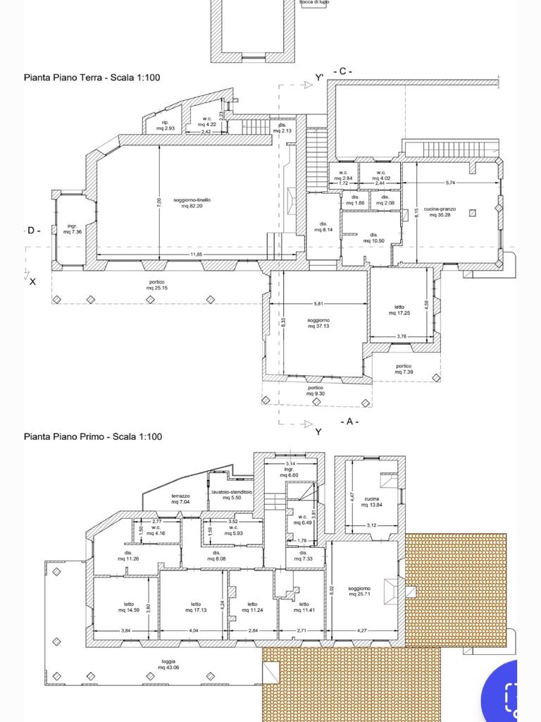
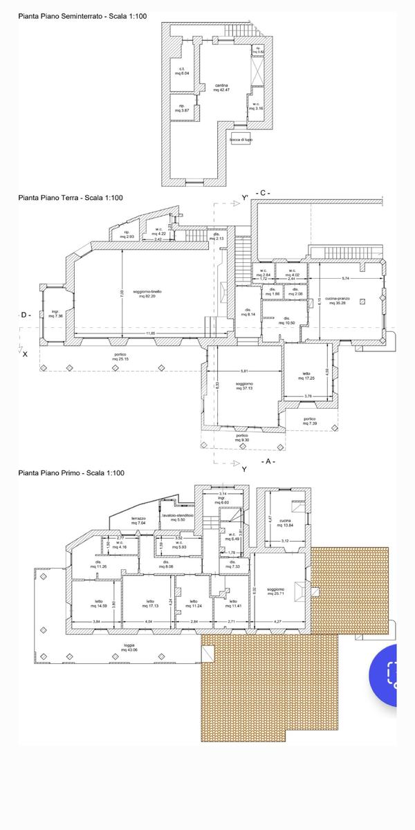
La villa si sviluppa su due livelli ed è composta da, tutti fuori terra:

5 stanze spaziose;

6 bagni;

Un grande salone;

Due camini, per creare atmosfere accoglienti

Una piccola dependance da ristrutturare;

Due cantine;

Questo immobile è ideale per una famiglia numerosa, due famiglie che desiderano vivere vicine, ma anche per chi cerca una casa di cura. La grandezza degli spazi e la posizione strategica lo rendono perfetto per chi cerca tranquillità senza rinunciare alla comodità di avere i principali servizi a portata di mano.

Non perdere l'occasione di vivere in un contesto esclusivo, circondato da bellezze naturali e con una vista che ti lascerà senza fiato in ogni momento della giornata!

Mostra tutto

Nelle vicinanze

Trasporto pubblico Trasporto pubblico
stazione di Marino Laziale
stazione di Marino Laziale
1,7 Km
Pantanella
Pantanella
1,9 Km
V. B. Buozzi / V. M.te Crescenzo
V. B. Buozzi / V. M.te Crescenzo
1,0 Km
V. B. Buozzi / V. Albalonga
V. B. Buozzi / V. Albalonga
1,1 Km
Scuole Scuole
Universidad Dallensis
1,4 Km
Scuola Anna Frank
1,6 Km
Istituto Comprensivo Marino Centro - Scuola Secondaria "G. Carissimi"
1,8 Km
Scuole
2,0 Km
I.T.C.G. Michele Amari
2,0 Km
Farmacia Farmacia
Farmacia
1,7 Km
Farmacia Comunale n. 3
1,7 Km
Farmacia "San Barnaba"
2,0 Km
Farmacia Dottoressa Lidonnici
2,6 Km
Ospedali Ospedali
I.N.I. Istituto Traumatologico
2,6 Km
Ospedale San Giuseppe
2,7 Km
Supermercati Supermercati
Top
1,2 Km
Pam Express
1,7 Km
Eurospin
2,9 Km
Negozi Negozi
Da Marcello
1,6 Km
KIRK
1,7 Km
Piccolo Forno Frezza
2,0 Km
Osè Underwear
2,0 Km
Il Fornaio
2,0 Km
Bar Bar
Chalet del Lago
1,3 Km
Panzanera
2,2 Km
A me mi piace
2,3 Km
Bar
2,3 Km
Bar
2,5 Km
Ristoranti Ristoranti
A casa di Mino
300 m
Al Vigneto dal 1961
1,1 Km
Domus Caesari
1,4 Km
Ristorante Il Pozzo
1,4 Km
Al Casaletto
1,4 Km
Mostra tutto

Caratteristiche

Rif.:
61112729
Piano:
Terra con giardino di 1
Totale piani:
1
Posti auto:
4
Balconi:
2
Terrazzi:
1
Mostra tutto
Prezzo Prezzo
€ 690.000
Rata mutuo Rata mutuo
€ 3.257 / mese
Spese annue Spese annue
€ 0
Proponi il tuo prezzoProponi il tuo prezzo

Classe Energetica

Questo immobile è esente da classe energetica
Anno di costruzione:
1967
Riscaldamento:
Autonomo
Tipo impianto:
A radiatori
Tipo alimentazione:
Metano

Ti interessa visionare l'immobile?

Fissa un appuntamento  Fissa un appuntamento

Richiedi informazioni

Clicca su Leggi per aprire l'informativa
* Questi campi sono obbligatori

Calcola il tuo mutuo

Semplice e senza impegno
Anticipo

( % )
Mutuo

( % )

pochi semplici passi

inserisci i tuoi dati
Questionario completato
Grazie per aver richiesto un appuntamento senza impegno con un nostro Consulente del Credito e Assicurativo.

Hai inserito correttamente tutti i dati necessari e a breve riceverai una e-mail con un link da convalidare per inviare i tuoi dati.
Affiliato
Tnc Immobiliare Srl
Via Massimo D'Azeglio, 38 00047 Marino (RM)

Il nostro staff


  • Angelica Cesaroni
    Coordinatrice

  • Fabio Aloisi
    Collaboratore

  • Lucia Romagnoli
    Coordinatrice

  • Gianluca Sampieri
    Affiliato
Via Massimo D'Azeglio, 38 00047 Marino (RM)
Zona: Marino
Mostra su mappa
Orari: Dal Lunedì al Venerdì 09:00 -13:00 / 15:30-19:30 Sabato 09:00 / 13:00
Affiliato
Tnc Immobiliare Srl
Via Massimo D'Azeglio, 38 00047 Marino (RM)

2025 Tecnocasa Franchising S.p.A. - P. IVA 08365160152 - Via Monte Bianco 60/A 20089 Rozzano (MI). Ogni agenzia ha un proprio titolare ed è autonoma. Privacy policy | Policy utilizzo | Cookie policy