Quadrilocale in vendita

Marino, Via Marcantonio Colonna
€ 260.000
4 locali 4 locali
140 Mq 140 Mq
2 bagni 2 bagni

Quadrilocale in vendita

Marino, Via Marcantonio Colonna

Descrizione annuncio

Via Marcantonio Colonna - Marino, zona molto ambita e da sempre ricercata per la sua centralità e per la comodità di aver a portata di mano qualunque tipo di servizio,
la sua posizione e la tipologia dell'immobile che oggi proponiamo, ci fa credere che questo sia il best buy del 2025, .
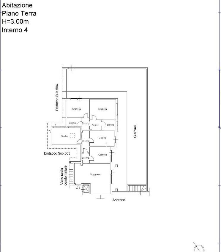
L'immobile è sito al piano terra di una palazzina di tre piani, misura 130mq, è composto da quattro locali attualmente così suddivisi: entrando troviamo un disimpegno che da accesso al salone doppio, un corridoio ci accompagna alla cucina abitabile, le tre camere da letto o da destinare in base alle proprie necessità, ed infine i due bagni.
Altri spazi e vani accessori arricchiscono il comfort di tutta la famiglia.
La particolarità di questa soluzione è che circondata da 113mq di giardino in parte verde e parte mattonato, dove poter trascorrere serate indimenticabili con amici e parenti accanto a un barbecue scoppiettante.
Tra le comodità della zona, da non dimenticare, che l'intero quartiere è designato a parcheggio libero non a pagamento.
Possibilità di acquisto di un box auto

Mostra tutto

Nelle vicinanze

Trasporto pubblico Trasporto pubblico
stazione di Marino Laziale
stazione di Marino Laziale
930 m
Pantanella
Pantanella
2,8 Km
C.so Vittorio Colonna / V.le 24 maggio
C.so Vittorio Colonna / V.le 24 maggio
190 m
C.so Vittorio Colonna
C.so Vittorio Colonna
340 m
Scuole Scuole
Scuola Statale Pertini
150 m
IIS Amari-Mercuri - sede Liceo Artistico "Paolo Mercuri"
250 m
Scuola Media "Giuseppe Ungaretti"
530 m
Scuola Media "G. Ungaretti"
550 m
Castelli International School
600 m
Farmacia Farmacia
Farmacia Dottoressa Lidonnici
70 m
Parafarmacia doc*Marino
490 m
Farmacia "San Barnaba"
570 m
Farmacia Comunale n. 3
920 m
Farmacia Comunale
1,6 Km
Ospedali Ospedali
Ospedale San Giuseppe
400 m
I.N.I. Istituto Traumatologico
690 m
Croce Rossa
1,6 Km
Supermercati Supermercati
Todis
480 m
doc*Marino
490 m
Pam Express
880 m
Carrefour
1,7 Km
Alimentari Fortini Enzo
1,8 Km
Negozi Negozi
Negozi
310 m
Forno a legna Raparelli
430 m
Kalu Sport
500 m
Vestirsi Oggi
560 m
Osè Underwear
610 m
Bar Bar
Bar
180 m
Bar
300 m
A me mi piace
360 m
Panzanera
390 m
Bar degli Ulivi
1,2 Km
Ristoranti Ristoranti
Ristoranti
170 m
Biscotti Alla Gattaia
340 m
Osteria Er Patata
450 m
Wunder Kaffee
470 m
La Torre
560 m
Mostra tutto

Caratteristiche

Rif.:
61066458
Piano:
1 di 4 con ascensore (Piano basso)
Box:
1
Posti auto:
1
Camere da letto:
4
Arredamento:
Parziale
Mostra tutto
Prezzo Prezzo
€ 260.000
Rata mutuo Rata mutuo
€ 1.227 / mese
Spese annue Spese annue
€ 0
Proponi il tuo prezzoProponi il tuo prezzo

Classe Energetica

Questo immobile è esente da classe energetica
Anno di costruzione:
1960
Riscaldamento:
Autonomo
Tipo impianto:
A radiatori
Tipo alimentazione:
Metano

Ti interessa visionare l'immobile?

Fissa un appuntamento  Fissa un appuntamento

Richiedi informazioni

Clicca su Leggi per aprire l'informativa
* Questi campi sono obbligatori

Calcola il tuo mutuo

Semplice e senza impegno
Anticipo

( % )
Mutuo

( % )

pochi semplici passi

inserisci i tuoi dati
Questionario completato
Grazie per aver richiesto un appuntamento senza impegno con un nostro Consulente del Credito e Assicurativo.

Hai inserito correttamente tutti i dati necessari e a breve riceverai una e-mail con un link da convalidare per inviare i tuoi dati.
Affiliato
Tnc Immobiliare Srl
Via Massimo D'Azeglio, 38 00047 Marino (RM)

Il nostro staff


  • Angelica Cesaroni
    Coordinatrice

  • Fabio Aloisi
    Collaboratore

  • Lucia Romagnoli
    Coordinatrice

  • Gianluca Sampieri
    Affiliato
Via Massimo D'Azeglio, 38 00047 Marino (RM)
Zona: Marino
Mostra su mappa
Orari: Dal Lunedì al Venerdì 09:00 -13:00 / 15:30-19:30 Sabato 09:00 / 13:00
Affiliato
Tnc Immobiliare Srl
Via Massimo D'Azeglio, 38 00047 Marino (RM)

2025 Tecnocasa Franchising S.p.A. - P. IVA 08365160152 - Via Monte Bianco 60/A 20089 Rozzano (MI). Ogni agenzia ha un proprio titolare ed è autonoma. Privacy policy | Policy utilizzo | Cookie policy